Centre de secours
MAÎTRE D’OUVRAGE :
SDIS du Cher
MAÎTRE D’ŒUVRE :
Blatter Sas d’Architecture, Blatter Frédéric Architecte DPLG
SURFACE :
963 m² SU
COÛT :
1 400 000 €HT
MISSION :
Misson de Base + EXE + OPC
LIVRAISON :
2020
PROGRAMME :
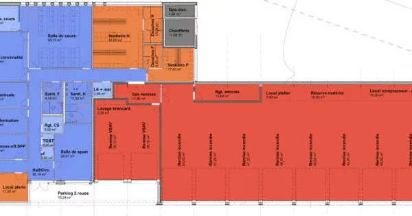
Le projet comprend la construction des nouveaux locaux du Centre de Secours d’Aubigny-sur-Nère, destinés à l’accueil de 54 sapeurs-pompiers, dont 4 Sapeurs-Pompiers Professionnels (SPP) et à la formation.
Le nouveau Centre de Secours, classé en code du travail, inclut une zone bureaux, comprenant des espaces de formation, et une zone technique comportant notamment des remises de stationnement des véhicules de secours.
PARTI ARCHITECTURAL
Le bâtiment est sobre et moderne, évoquant l’efficacité d’action des sapeurs-pompiers de la commune. Il abrite un programme multiple (bureaux, remises véhicules, mais aussi salle de formation, salle de sport, vestiaires, ateliers …) dans un volume unitaire, simple parallélépipède à toiture à une pente. La teinte gris sombre uniforme des façades et de la couverture renforce encore l’unité du bâtiment.
Ce volume est évidé ponctuellement, à l’Est pour offrir un auvent d’entrée, au Sud pour protéger les fenêtres des bureaux. Ces renfoncements sont revêtus d’un bardage en inox à redans, animant la façade par des effets optiques.
Intérieurement, le bâtiment se compose d’une partie bureaux, située au Sud, et d’une partie technique au Nord. L’implantation des locaux vise à une efficacité maximale des flux en période de crise.
La position des bureaux, et notamment du hall d’accueil, du commandement et du local d’alerte, en proue du bâtiment, permet une surveillance optimale du site. En particulier, le local d’alerte, entièrement vitré, dispose d’une vue à 180° sur l’aire de manœuvre des véhicules.
AUBIGNY (18)
- CLIENT : SDIS du Cher






